Splendide duplex de 120 m2 à rénover, Martigny centre
Suisse, Martigny | Martigny
Description
Référence:
19203
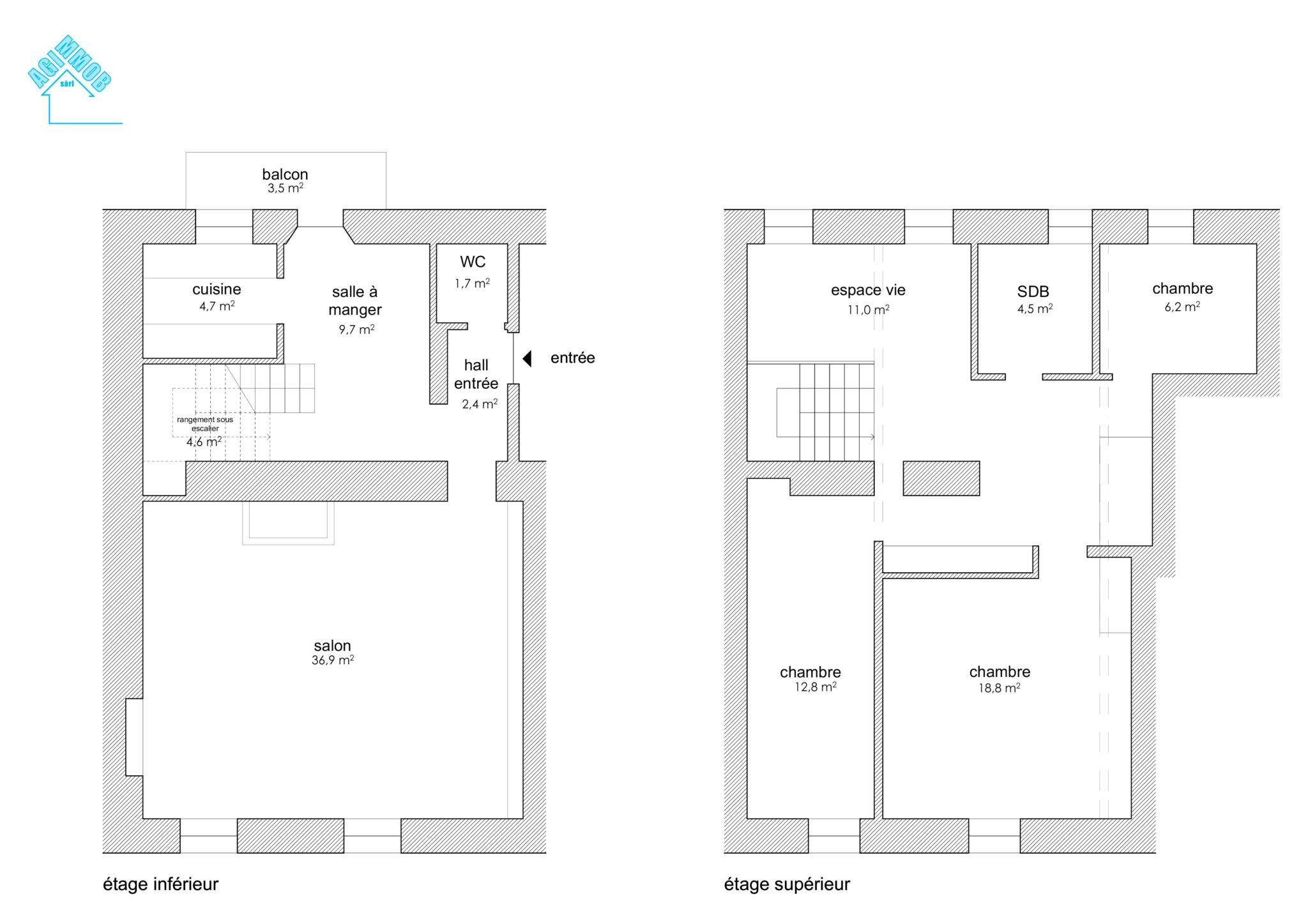
Pièces:
5.5
Nb de salles de bain:
2
Nb de chambres:
4
Surfaces:
120 m2
Vue:
Belle vue
État:
A rénover
Charges mensuelles PPE:
CHF 700.-
Description
Charmant duplex de 120 m2 idéalement situé sur la Place Centrale à Martigny dans une petite PPE de 7 lots.
Il offre un potentiel exceptionnel pour les amateurs de rénovation.
N’attendez plus pour réaliser le cocon de vos rêves.
Prix : Fr. 590'000.—
Disponible à convenir
Informations et visites : 079 709 43 22
Adresse
Place Centrale 10
1920 Martigny
Sur la carte
CHF 590'000.-
Agent immobilier
Pauline KAMERZIN
E-mail
agimmob.pk@gmail.com
Téléphone
+41 79 709 43 22
Contactez le courtier
